聯系我們
18903178757
- 地址:
- 河北省泊頭市富鎮開發區
- 傳真:
- 0317-8041117
- Q Q:
- 28505225
濾筒除塵器設備
濾筒除塵器以濾筒作為過濾元件所組成或采用脈沖噴吹的除塵器。 濾筒除塵器按安裝方式分,可以分為斜插式,側裝式,吊裝式,上裝式。 濾筒除塵器按濾筒材料分,可以分為長纖維聚酯濾筒除塵器,復合纖維濾筒除塵器,防靜電濾筒除塵器,阻燃濾筒除塵器,覆膜濾筒除塵器,納米濾筒除塵器等。
中文名
濾筒除塵器
結????構
進風管、排風管
工作原理
氣流斷面突然擴大
技術改進措施
清灰裝置
目錄
1簡介
2濾筒式除塵器的結構
3筒式除塵器工作原理
4技術改進措施和選用技術
5除塵過程
6濾筒除塵器的特點
7主要性能指標
8濾筒除塵器濾筒及濾料
??濾筒??濾料?
?
1簡介
濾筒式除塵器早在20世紀70年代就已經在日本和歐美一些國家出現,具有體積小,效率高,投資省,易維護等優點,但因其設備容量小,難組合成大風量設備,過濾風速偏低,應用范圍窄,僅在糧食、焊接等行業應用,所以多年來未能大量推廣。近年來,隨著新技術、新材料不斷地發展,以日本,美國的公司為代表,對除塵器的結構和濾料進行了改進,使得濾筒除塵器廣泛地應用于水泥、鋼鐵、電力、食品、冶金、化工等工業領域,整體容量增加數倍,成為過濾面積>2000m2大型除塵器(GB6719-86類),是解決傳統除塵器對超細粉塵收集難、過濾風速高、清灰效果差、濾袋易磨損破漏、運行成本高的佳方案,和市場上現有各種袋式、靜電除塵器相比具有有效過濾面積大、壓差低、低排放、體積小、使用壽命長等特點,成為工業除塵器發展的新方向。
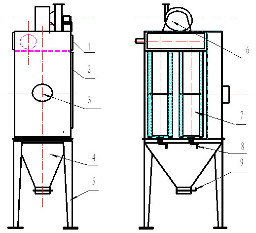
2濾筒式除塵器的結構
濾筒式除塵器的結構是由進風管、排風管、箱體、灰斗、清灰裝置、導流裝置、氣流分流分布板、濾筒及電控裝置組成,類似氣箱脈沖袋除塵結構。
濾筒在除塵器中的布置很重要,既可以垂直布置在箱體花板上,也可以傾斜布置 在花板上,從清灰效果看,垂直布置較為合理。花板下部為過濾室,上部為氣箱脈沖室。在除塵器入口處裝有氣流分布板。

3筒式除塵器工作原理

含塵氣體進入除塵器灰斗后,由于氣流斷面突然擴大及氣流分布板作用,氣流中一部分粗大顆粒在動和慣性力作用下沉降在灰斗;粒度細、密度小的塵粒進入濾塵室后,通過布朗擴散和篩濾等組合效應,使粉塵沉積在濾料表面上,凈化后的氣體進入凈氣室由排氣管經風機排出。
濾筒式除塵器的阻力隨濾料表面粉塵層厚度的增加而增大。阻力達到某一規定值時進行清灰。此時PLC程序控制脈沖閥的啟閉,首先一分室提升閥關閉,將過濾氣流截斷,然后電磁脈沖閥開啟,壓縮空氣以及短的時間在上箱體內迅速膨脹,涌入濾筒,使濾筒膨脹變形產生振動,并在逆向氣流沖刷的作用下,附著在濾袋外表面上的粉塵被剝離落入灰斗中。清灰完畢后,電磁脈沖閥關閉,提升閥打開,該室又恢復過濾狀態。清灰各室依次進行,從比較好室清灰開始至下一次清灰開始為一個清灰周期。脫落的粉塵掉入灰斗內通過缷灰閥排出。
在此過程中必須定期對濾筒進行更換和清洗,以確保過濾效果和精度,因為在過濾過程中粉塵除了被阻隔外還有部分會沉積于濾料表面,增大阻力,所以一般的正確更換時間是三至五個月!
4技術改進措施和選用技術
4.1清灰裝置
傳統的濾筒除塵器有兩種清灰方式,一種是高壓氣流反吹,一種是脈沖氣流噴吹,實踐表明前者的優點是氣流均勻,缺點是耗氣量大;后者的優點是耗氣量小,缺點是氣流弱小。為此可作兩個方面改進:一方面在脈沖噴吹管上增加導流裝置,加強氣流誘導作用,另一方面把濾筒上部導流風管取消,使脈沖氣流和誘導氣流同時充分進入濾筒。這樣改進后耗氣量少,氣流均勻,清灰效果好,根據計算,技術改進后的清灰氣流流量是脈沖氣量的3-5倍。
4.2 氣量分布板
濾筒除塵器的氣流分布很重要,必須考慮如何避免設備進口處由于風速較高造成對濾料的高磨損區域。氣流分布板用于濾筒式除塵器有獨特要求,氣流分布必須十分穩定和均勻。才有利于氣流的上升和粉塵的下降,氣流分布板開孔率35%。根據計算,阻力系數
②濾筒高度小,安裝方便,使用維修工作量小;
5除塵過程
1、捕集分離過程
①捕集推移階段。實質是粉塵的濃縮階段。均勻混合或懸浮在運載介質中的粉塵,進入除塵器的除塵空間。由于受外力的作用,將粉塵推移到分離界面,隨粉塵向分離界面推移,濃度越來越大,為固—氣分離進一步作好準備。
② 分離階段。當高濃度的塵流流向分離界面以后,存在兩種作用機理:其一,運載介質運載粉塵的能力逐漸達到極限狀態,在粉塵懸浮和沉降趨勢上,以沉降為主,并通過粉塵沉降,使之從運載介質中分離出來;其二,在高濃度塵流中,粉塵顆粒的擴散與凝聚趨勢,以凝聚為主,顆粒之間可以彼此凝聚,也可在實質界面上凝聚并吸附。
2、排塵過程
經過分離界面以后,己分離的粉塵通過排塵口排出的過程。
3、排氣過程
已除塵后相對凈化的氣流從排氣口排出的過程
6濾筒除塵器的標準
2002年中華人民共和國機械行業標準:濾筒式除塵器標準 JB/T10341-2002
除塵器圖片:

6濾筒除塵器的特點
濾筒除塵器的特點如下:
①由于濾料折褶成筒狀使用,使濾料布置密度大,所以除塵器結構緊湊,體積小;
濾筒式除塵器圖片:

③同體積除塵器過濾面積相對較大,過濾風速較小,阻力不大;
④濾料折褶要求兩端密封嚴格,不能有漏氣,否則會降低效果。
脈沖濾筒除塵器的特單如下:
1、濾筒采用進口聚酯纖維作為濾料,把一層亞微米級的超薄纖維粘附在一般濾料上,并且在該粘附層上纖維間的排列非常緊密,極小的篩孔可把大部分亞微米級的塵粒阻擋在濾料表面;
2、濾料折褶使用,可增大過濾面積,并使除塵器結構更為緊湊;
3、?濾筒高度小,安裝維修工作量小;
4、與同體積除塵器相比,過濾面積相對較大,過濾風速較小,阻力不大;
5、?單機除塵器清灰采用脈沖噴吹在線清灰方式。清灰過程由脈沖控制儀自動控制。除塵器內設置多個濾筒以增加其有效過濾面積,當某個(對)濾筒滿足清灰設定要求時,即啟動噴吹裝置進行清灰,其他濾筒正常工作,這樣既達到了清灰效果又不影響設備運行,使除塵器可連續運轉;組合式除塵器清灰采用分室離線脈沖自動循環清灰。每個除塵室內設置多個濾筒以增加其有效過濾面積,當某個除塵室內濾筒滿足清灰設定要求時,即啟動噴吹裝置進行清灰,其他除塵室正常工作,這樣既保障了清灰效果又可使除塵器可連續運轉;
6、 除塵效率高(一般可達99.6%以上),操作方便;
7主要性能指標
脈沖氣流沒有經過文丘里就直接噴吹進入濾筒內部。將會導致濾筒靠近脈沖閥的一端(上部)承受負壓,而濾筒的另一端(下部)將承受壓力如圖6-29所示。這就會造成濾筒的上下部清灰不同而可能縮短使用壽命,并使設備不能達到有效清灰。
為此可在脈沖閥出口或者脈沖噴吹管上安裝濾筒用文丘里噴嘴。把噴吹壓力的分布情況改良成比較均勻的全濾筒高度正壓噴吹。
灰塵堆積在濾筒的折疊縫中將使清灰比較困難。所以折疊面積大的濾筒(每個濾筒的過濾面積達20~22m2)一般只適合應用于較低入口濃度的情況。比較常用濾筒尺寸與過濾面積。
濾筒除塵器脈沖噴吹裝置的分氣箱應符合JB/T 10191-2000的規定。潔凈氣流應無水、無油、無塵。脈沖閥在規定條件下,噴吹閥及接口應無漏氣現象,并能正常啟閉,工作可靠。
脈沖控制儀工作應準確可靠,其噴吹時間與間隔均可在一定范圍內調整。誘導噴吹裝置與噴吹管配合安裝時。誘導噴吹裝置的噴口應與噴吹管上的噴孔同軸,并保持與噴管一致的垂直度,其偏差小于2mm。
8濾筒除塵器濾筒及濾料
濾筒圖片

濾筒式除塵器的過濾元件是濾筒。濾筒的構造分為頂蓋、金屬框架、褶形濾料和底座等四部分。由這四部分組成的濾筒有圓形、扁形和錐形等。
濾筒是用設計長度的濾料折疊成褶,首尾黏合成筒,筒的內外用金屬框架支撐,上、下用頂蓋和底座固定。頂蓋有固定螺栓及墊圈。圓形濾筒,扁形濾筒的外形。
濾筒的上下端蓋、護網的粘接應可靠,不應有脫膠、漏膠和流掛等缺陷;濾筒上的金屬件應滿足防銹要求;濾筒外表面應無明顯傷痕、磕碰、拉毛和毛刺等缺陷;濾筒的噴吹清灰按需要可配用誘導噴嘴或文氏管等噴吹裝置,濾筒內側應加防護網,當選用D≥320mm,H≥1200mm濾筒時,宜配用誘導噴嘴。
常用濾筒分為三大類。表為不同空氣濾筒的不同保護對象和安裝部位
|
類別
|
名稱區別
|
保護對象
|
具體應用場合及安裝位
|
|
Ⅰ
|
保護機器類的空氣濾筒
|
內燃機、空氣壓縮機、汽輪機及其他類發動機的進氣系統機件保護
|
汽車、各種戰車、各類船艦、鐵路機車、飛機、運載火箭等發動機的進氣口或進氣道
|
|
Ⅱ
|
創建潔凈房間的空氣濾筒
|
潔凈室無塵,保證生產產品質量,煙霧廠房凈化后保證人體健康
|
藥品、食品、電子產品的生產車問凈化;博物館、圖書館等館藏間凈化,手術室、健身房、生產廠房煙塵排放;行走器、飛行器、駕駛艙凈化。安裝在進氣口或進氣道。
|
|
Ⅲ
|
保護大氣用除塵器濾筒
|
控制煙塵粉塵排放,保護地球切生靈健康長壽
|
水泥廠、電廠、鋼廠等煙粉塵控制排放;垃圾焚燒、煉焦煉鐵、鍛鑄廠房及汽車等煙塵排放口
|
濾筒成品體積與過濾器總成體積關系很大。使用過濾器總成的主機,往往對過濾器提出以下要求:①除塵器總高和進出口距離(寬);②濾筒下體總高和直徑;③濾筒總質量;④出氣口連接方式及尺寸;⑤過濾精度等一系列與過濾特性相關的性能要求。
濾筒設計根據總成要求要注意以下要素。
(l)濾筒外徑尺寸 大于濾筒內徑10mm以上為宜。這是因為高而窄小的空間,可以讓污染顆粒在濾筒外層緩慢沉降,這樣使濾筒從上而下地均勻接受污染堵塞。
(2)內骨架直徑尺寸的確定 主要考慮通油小孔的大小不應影響過濾氣量,同時要照顧小孔尺寸對骨架強度的影響。
(3)內骨架總強度極為重要 首先要考慮濾筒承受的壓差要以骨架支撐,所以直徑越小強度越高。
(4)褶皺紋牙高度 應選在l0~50mm之間為佳。
(5)充分留有壓差極限余地 當計算出所需過濾而積后,應將此面積增大1倍。這是因為要充分考慮實際工作中,粉塵污染物是不可預測的。
濾料圖片

濾筒用濾料有兩類:一類是合成纖維濾料,一類是紙質濾料。
合成纖維非織造濾料。按加工工藝可分為連續纖維紡粘聚酯熱壓及短纖維紡粘聚酯熱壓兩類。濾料表面防水處理工況時,防水處理后的濾料其浸潤角應大于90°,沾水等級不低于Ⅳ級。濾料防油處理工況時,濾料做防油處理。聚酯非織造濾料可承受工作溫度不低于120℃。對高溫高濕等其他特殊工況,濾筒材質結構的選用應滿足應用要求。
紙質濾料可分為低透氣度和高透氣度兩類。
另外還有合成纖維非織造聚四氟乙烯覆膜濾料和紙質聚四氟乙烯覆膜濾料。


